Propiedades Destacadas Institucional Contacto

EDIFICIO A606 EN MERLO BS. AS.

DESCRIPCIÓN

El proyecto se desarrolla sobre una parcela de 23.37m x 43.60m sobre una superficie de 525 m2.
Se compone de:
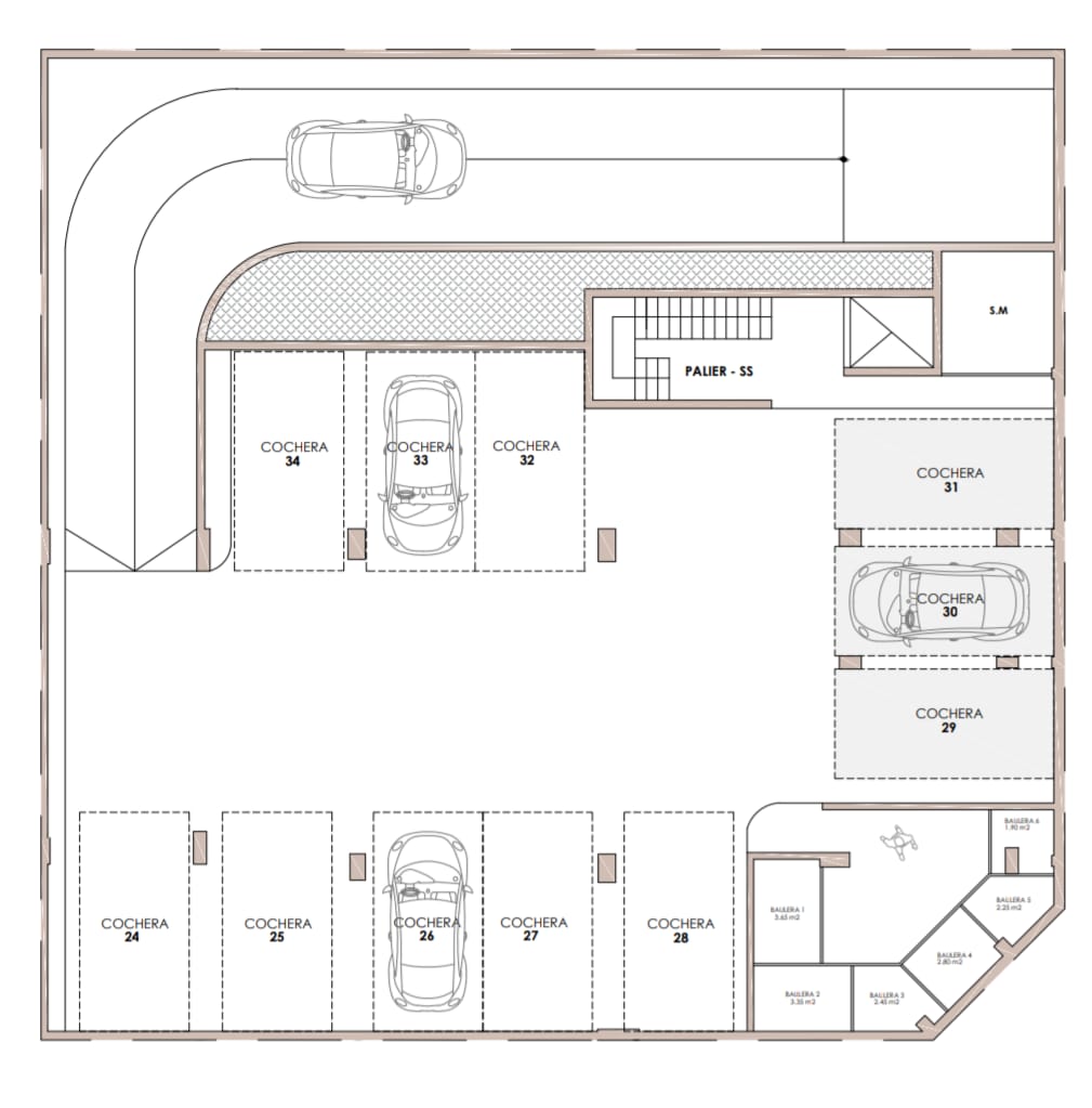
SUBSUELO con 11 unidades de cocheras y 6 bauleras.
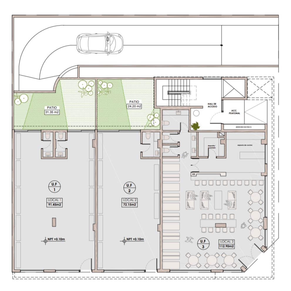
PLANTA BAJA con 3 locales comerciales.
4 PISOS, el 1° de 5 departamentos (4 de dos ambientes y 1 de 3 ambientes), el 2°,3°,4° pisos de 5 departamentos (5 de dos ambientes), dando un total de 20 unidades de viviendas. Cuenta con terrazas privadas y salón de usos múltiples con parrilla. Revestimiento plástico texturado exterior tipo “Sitex” + hormigón vista.
Ascensor con revestimiento y puertas en acero inoxidable en planta baja, piso en granito. Pisos cerámicos de primera calidad en balcón en todas las unidades.
APTO CRÉDITO

Detalles del Proyecto

Entrega estimada:

MAYO 2026

Características:

Pisos cerámicos de primera calidad en living-comedor, cocina y dormitorios. Paredes interiores terminadas en pintura al látex de primera marca. Artefactos sanitarios en loza blanca tipo “Ferrum” o Roca. Revestimientos cerámico de primera calidad y guarda intermedia en baños. Griferías cromadas tipo FV modelo “Alegro” o similar. Puertas interiores en cedro con marco de chapa. Puertas de acceso a departamentos metálicas con detalle en acero. Carpinterías de aluminio línea rotonda 640. Amoblamientos de cocina hecho a medida y de diseño exclusivo, en melanina con bordes de aluminio. Mesada de granito gris perla y bacha de acero inoxidable. Frente de placard corredizos hechos a medida, sobre guías de aluminio. Pre-instalación para aire acondicionado tipo Split en estar-comedor y dormitorios (NO incluye equipos). Conexión para lavarropas en todas las unidades.Instalación lista para teléfono, televisión e internet. Instalación agua fría y caliente en cañería de polipropileno con termofusión. Agua caliente con termos eléctricos. Instalación para cocinas a gas (sin provisión de artefacto). Instalación de campana. Hall de entrada: piso en porcelanato, cerramientos en vidrio con puerta.

Contáctenos y conviértase en inversor desarrollador.

Contacto

Admin

© 2026 - Liliana I. García | Desarrollo web - SencilloStudio.ar